- Sleeps 8
- 3 Slides
- Diesel
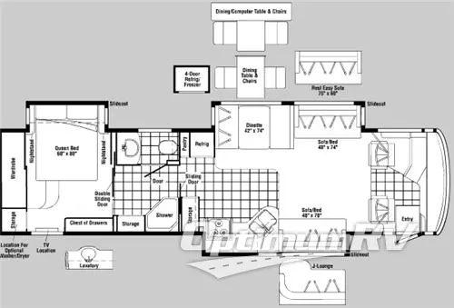
Floorplan

Specifications
- Sleeps 8
- Slides 3
- Ext Width 102
- Ext Height 139
- Int Height 80
- GVWR 29,410
- Fresh Water Capacity 92
- Grey Water Capacity 55
- Black Water Capacity 54
- Furnace BTU 40,000
- Fuel Type Diesel
- Miles 111,862
- Engine Cat. 7.2L Turbo
- Chassis Freightliner
- VIN 4UZACJDC66CW69477
Description
Triple Slide, Queen Bed Slideout, Chest of Drawers, Wardrobe, Storage Area/Opt. Washer/Dryer, Angle Shower, Pantry, Refrigerator, 3 Burner Range, Double Kitchen Sink, 2 Sofa Beds or Opt. J-Lounge &/or Rest Easy Sofa, Booth Dinette w/Opt. Table & Chairs, and More.











